子育てとシンプルライフ~ゆとりの時間を育む暮らし~
一戸建て京都市上京区 M様邸 全面改装工事
- NEW
- 概要
- 築年数35年
- 施工面積86.6 m2(約26.2坪)
- 費用1667万円(税込)
- 工期3ヵ月
- 家族構成40代ご夫婦・娘様
リフォームのコンセプト
共働き夫婦の子育てリフォーム
『娘様と過ごす時間を少しでも長く快適に』ということをテーマに今回の間取りをご提案しました。
共働きのお二人のための設計です。
リフォームのきっかけ
ご主人様のご実家で、娘様の成長に合わせて子育てしやすい間取りにしたいとリフォームをご決断。
お部屋のほとんどがうまく活用できていませんでした。
奥様は、自分好みの内装デザインと間取りではないことに、不満と使いにくさを感じておられました。
リフォーム前のお悩み
・LDKを広くしたい
・パントリーが欲しい
・対面キッチンにしたい
・好みの内装にしたい
・物がなく、すっきり見えるようにしたい
・洗濯の動線を良くしたい
・風通しを良くしたい
・趣味のキャンプ用品や、自転車を入れられる場所を作りたい
リフォームのポイント
お客様の声
2階にリビングを提案いただいたことで、昼間は電気がいらないくらいに明るくて気持ちが良いです。
床に無垢材を使用したり、内窓を使用したりと、冬でもとても暖かく快適です!
リビングから洗面所へ、風通しが良くなったことでとても快適になりました!
家事の面では、キッチンが回遊できる導線になったのが便利です。
水まわりが2階になり、バルコニーにすぐ洗濯物を干せるようになり楽になりました!
娘はかわいい洗面台をとても気に入っていて、リフォームをして良かったと実感しています。
玄関横の収納にはアウトドアグッズや自転車を入れても十分広く使い勝手がよく、
出かける前のバタバタがなくストレスフリーになり、とても重宝しています。
奥様こだわりの内装と記念の手形
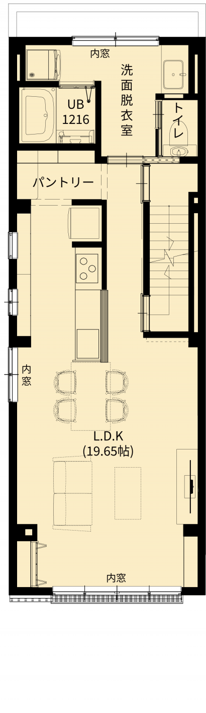
LDK
BEFORE
うまく有効活用できていなかった2階和室
AFTER
冬場は寒く採光があまり取れなかったLDKは、1階から2階に移し自然光の差し込む明るく広いLDKに。
有効活用できていなかった居室を取り込み、ゆとりある空間が生まれました。
有効活用できていなかった居室を取り込み、ゆとりある空間が生まれました。
キッチン
BEFORE
AFTER
1階から場所を移したキッチン。
対面キッチンにすることで、家族の様子を見守ることが出来る空間になりました。
対面キッチンにすることで、家族の様子を見守ることが出来る空間になりました。
カウンターの腰壁には水回りに強いモールテックスを施しました。
キッチン奥には奥様念願のパントリーを造作し、家電やストック品がすっきり収納できます。
パントリーを廊下からアクセスできる回遊型にしたので、帰宅後の動線もスムーズで時短に。
お買い物をしてきたら、パントリーに直行!
そのままの流れでキッチンでお料理、洗面所も近いので、家事動線がラクラクです!
水まわり
BEFORE
AFTER
【洗面脱衣室】
洗面台は収納量と、デザイン性を考えて造作洗面をご提案しました。
下部の収納は可動棚で仕切っているので、お子様の踏み台も収納できるようになっています。
洗面台は収納量と、デザイン性を考えて造作洗面をご提案しました。
下部の収納は可動棚で仕切っているので、お子様の踏み台も収納できるようになっています。
サッシに内窓を設置し、断熱性能も向上しました。
BEFORE
AFTER
【トイレ】
ヘリンボーンの壁がアクセント。
可動棚で収納量UP!
ヘリンボーンの壁がアクセント。
可動棚で収納量UP!
BEFORE
AFTER
【浴室】
お掃除のしやすいお風呂に。
お掃除のしやすいお風呂に。
玄関
BEFORE
AFTER
土間スペースと階段前のホールを広くとるため、奥行を広く見せるよう框を斜めに施工しました。
お子様の自転車を置くことが出来る、開放的な空間となりました。
お子様の自転車を置くことが出来る、開放的な空間となりました。
目で見える範囲に物が散らからず、常に綺麗が保てる玄関ホールに。
間取り
BEFORE
1F
AFTER
1F
BEFORE
2F
AFTER
2F
施工DATA
■施工面積 /86.6 m2(約26.2坪)
■費用 /¥16,670,000(税込)
※表示価格は全て税込価格となっております。
※新築事例の場合もございます。





