光の射す、ペットと暮らす家
一戸建て京都市北区 H様邸 全面改装工事
- 概要
- 築年数25年
- 施工面積112.3 m2(約33.97坪)
- 費用920万円(税込)
- 工期2ヶ月
- 家族構成50代ご夫婦、息子様、ワンちゃん
お客様の声
きっかけ
今まで母が持っていた空き家の隣家が更地になり、光がすごく入るようになったので、その家を住みやすくリフォームして引っ越そうと思った。
夢・悩み
・ものが多いので、スッキリ出来るよう収納が欲しい。
・動線を短くしたい。
・内装が暗いので、もっと明るい家にしたい。
隣家が更地になり、とても光が入るようになったので、その家を住みやすくリフォームしたいと思ったのが、最初のきっかけでした。
設備品を新しくしたり、内装が暗かった為、部屋がもっと明るくなるよう、新しくしてもらうようにお願いしました。また、ものが多かったことと部屋をスッキリさせたいということで、収納についての提案もお願いしました。
私の大好きなピンクのキッチンや洗面台を入れてもらったり、お風呂では足を延ばせるようになり、湯船に浸かる時間も長くなりました。LDKは収納が増えたことで、スッキリした空間になり、居心地のよくなったLDKで、家族3人とも「落ち着くなぁ。」と話していました。明るくなった家に、飼っている犬も走り回ってとても喜んでいます。
収納など、いろいろな提案など本当に良くしてもらいましたし、アップリフォームさんに頼んで良かったと思っています。
LDK
【アクセント:写真左】TVボード部分の壁紙は、アクセントでブラウンの壁紙に。
【収納:写真右】ボックスを使用することで、いつもより容量がアップ。
![]()
![]()
【2Fトイレ:写真右】動線を短くするためにも、寝室からも入れるよう提案。
![]()
![]()
水廻り
【水廻り】ピンクを基調とする水廻りは、バリアフリーにも考慮し、手すりを設けました。
![]()
【玄関:収納】
圧迫感を与えないスリット格子は、収納で作業している
とき隠れるようにと提案。
安全のために手すりも取り付けました。
![]()
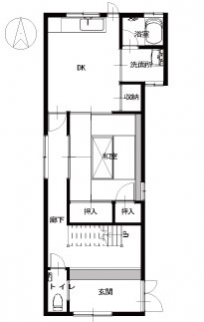
間取り
光が入るようになった家をもっと住みやすくリフォームしたいと相談に来られたH様。
元々は違うお家に住まれていた為、たくさんあるものを収納できるか、また内装が暗かった為、設備品から全部リフォームしたいということで、収納をメインにスッキリ明るいプランを提案させて頂きました。
ご家族の集まるLDKには、ものも多いということで、TVボードや吊戸、またそれぞれのお部屋には大きさに合わせた収納を提案。暗かった内装は明るい床材や壁紙を使用し、それぞれのお部屋にご家族が好きなピンクやブラウンの壁紙をアクセントにしました。
今までのお家で不満に思われていた、玄関の広さや飼われているワンちゃんが走ってもすべらない床材なども喜んで頂き、こちらとしてもありがたく思います。
![]()
施工DATA
■施工内容 /アップリフォームLIXIL4点セット/キッチン:アミィ I型2550/UB:ラバス 1616/洗面化粧台:オフト W750/トイレ:アメージュZ/床:集成フローリング(上張り)/天井・壁:クロス/収納造作/
■面積 /112.30㎡(約33.97坪)
■費用 /¥9,200,000(税込)
※表示価格は全て税込価格となっております。
※新築事例の場合もございます。




