施工作品日記 LDK
夫婦の時間を奏でる空間~大津市T様邸~
こんにちは!
京都のリフォーム専門店「ハウスドゥ!アップリフォームジャパン」
京都中央ショールームのおおたです(*´▽`*)
さて、先日完工致しました大津市T様邸のご紹介です!
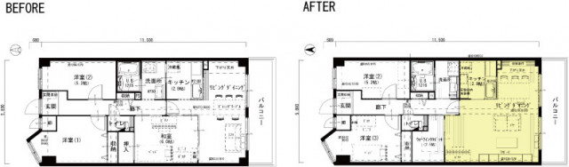
築30年のマンションでマンション内でもリフォームをされている人も増えて、水回りも入替時期になった為。
ご要望
・和室を取り込んで楽器の練習が出来るように広いLDKに。
・WICが欲しい。
・水回りを入替。

取り込んだ和室は、LDKとWICの空間として使いました(^^♪
床は杉の無垢材を使用しているので、足触りが良く、気持ちの良い空間に。
キッチンのレイアウトは吊戸を撤去し、ご夫婦で会話のしやすい対面キッチンに。

キッチンの床はテラコッタのクッションフロアを使用し、キッチン前には一部タイルを使用しました。
目地はカラー目地にし、ポイントに♬


オーディオを置いたり、ご主人様のお好きなお酒を飾ったりと、T様の好きが詰まったお気に入り飾り棚に。
タイルの目地はポイントでカラー目地に。

和室を取り込んだので、楽器を置くスペースも確保。お二人で演奏することも。
和室の一部はウォークインクローゼットになりました。
※ご主人様が演奏してくださりました(^^♪

こだわりの洗面所!ショールームに置いてあるような洗面台です。
洗面所も杉の無垢材を使用しています。
洗面所は裸足でいることも多いので、気持ち良いですね!

最後にT様!
いつも優しく接してくださり、楽しいお打合せありがとうございました。
これからもよろしくお願い致します。
ご来店の際は前もってご予約して頂くとスムーズにご対応できます。
「ショールーム来店予約」はコチラから
京都のリフォーム専門店「ハウスドゥ!アップリフォームジャパン」
京都中央ショールームのおおたです(*´▽`*)
さて、先日完工致しました大津市T様邸のご紹介です!
築30年のマンションでマンション内でもリフォームをされている人も増えて、水回りも入替時期になった為。
ご要望
・和室を取り込んで楽器の練習が出来るように広いLDKに。
・WICが欲しい。
・水回りを入替。

取り込んだ和室は、LDKとWICの空間として使いました(^^♪
床は杉の無垢材を使用しているので、足触りが良く、気持ちの良い空間に。
キッチンのレイアウトは吊戸を撤去し、ご夫婦で会話のしやすい対面キッチンに。

キッチンの床はテラコッタのクッションフロアを使用し、キッチン前には一部タイルを使用しました。
目地はカラー目地にし、ポイントに♬


オーディオを置いたり、ご主人様のお好きなお酒を飾ったりと、T様の好きが詰まったお気に入り飾り棚に。
タイルの目地はポイントでカラー目地に。

和室を取り込んだので、楽器を置くスペースも確保。お二人で演奏することも。
和室の一部はウォークインクローゼットになりました。
※ご主人様が演奏してくださりました(^^♪
こだわりの洗面所!ショールームに置いてあるような洗面台です。
洗面所も杉の無垢材を使用しています。
洗面所は裸足でいることも多いので、気持ち良いですね!

最後にT様!
いつも優しく接してくださり、楽しいお打合せありがとうございました。
これからもよろしくお願い致します。
ご来店の際は前もってご予約して頂くとスムーズにご対応できます。
「ショールーム来店予約」はコチラから
![]() |
住所:京都市右京区西院坤町1 ハウスドゥ四条ビル 電話番号:0120-6-12120 駐車場:駐車場20台完備 最寄駅:西院駅(阪急京都本線) |
![]() 京都のリフォーム専門店 |
![]() リフォーム専門店 |









